高津の工場リノベーション

築43年の元部品工場。
1階が部品工場、2階は工員さんの住まいとして、2013年3月まで稼働していた場所。
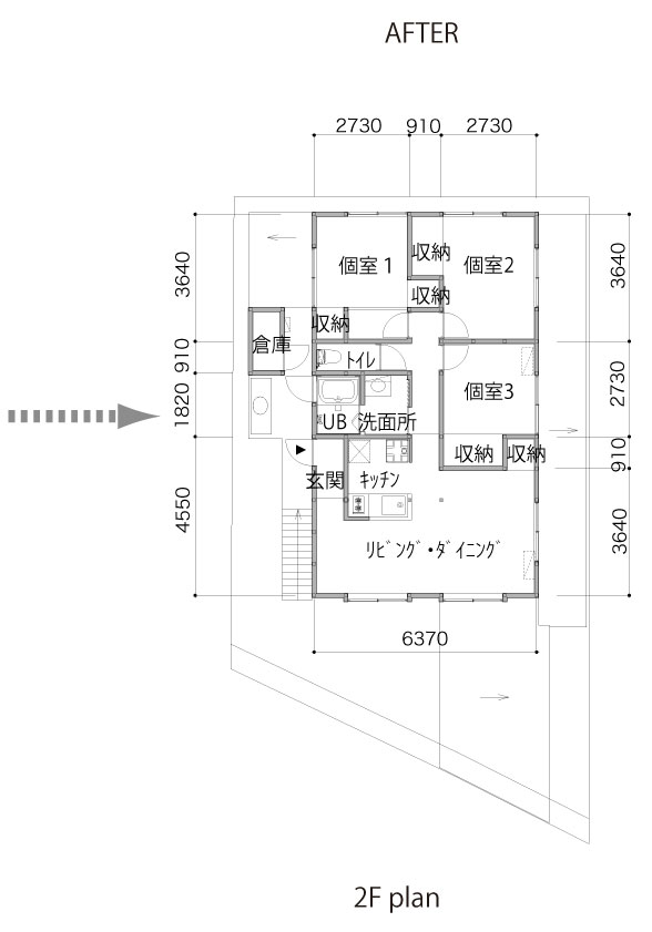
工場部分はアトリエやオフィスとして、2階は、お風呂がなかったり、トイレが離れだったりしたものを『家族で暮らせる一住戸』として、
リノベーションしました。
| 所在地 | 神奈川県川崎市高津区 |
| 用途 | 工場+住居 |
| 延床面積 | 170.66㎡(51.62坪) |
| 構造 | 木造在来工法 |
| 階数 | 地上2階 |
| 施工 | リンク・パワー株式会社 |









takatsu1
takatsu2
takatsu3
takatsu4
takatsu5
takatsu6
takatsu7
takatsu8
takatsu9




