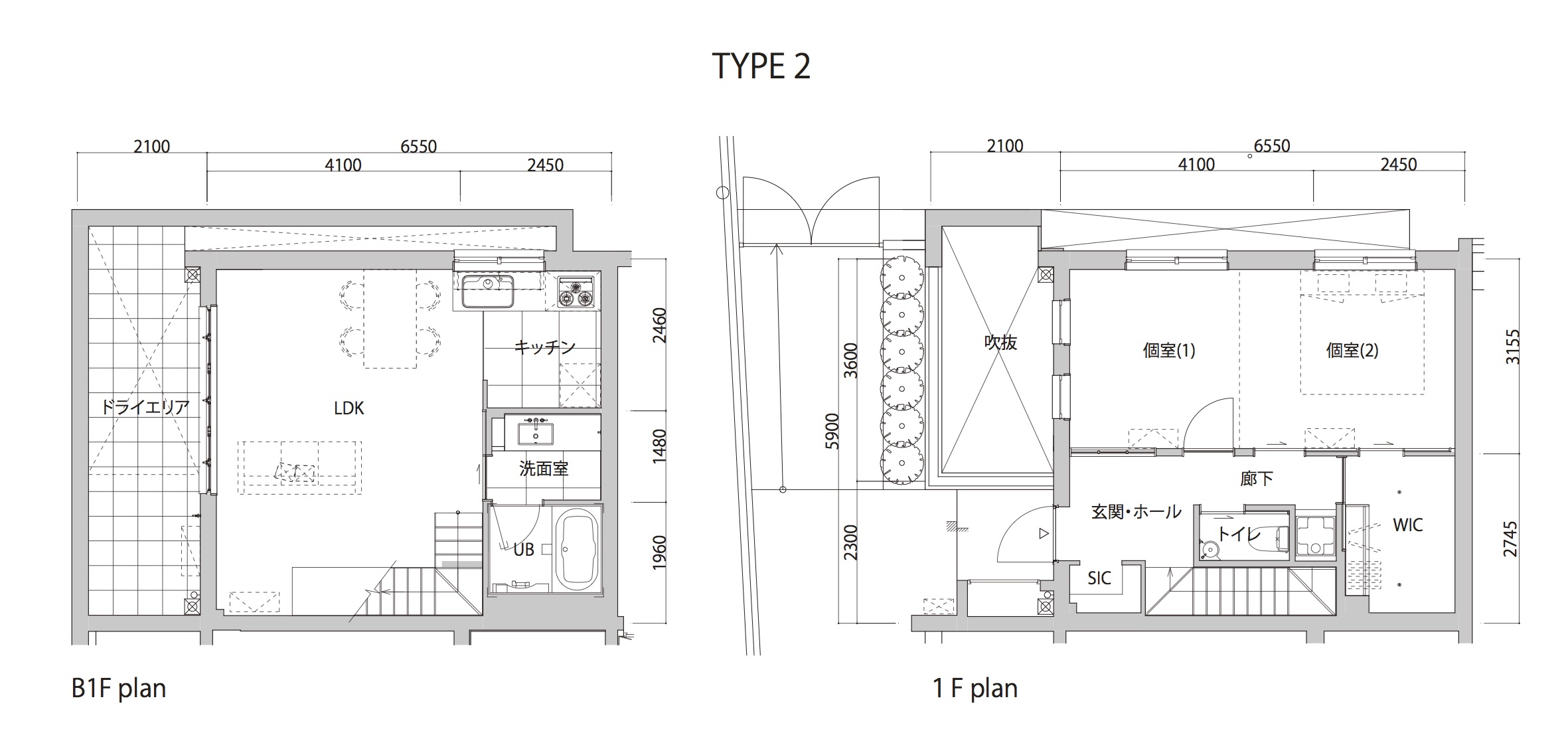
代々木コーポラティブハウス(住戸設計)

コーポラティブハウスの住戸設計。地下1階+1階のメゾネットタイプ3戸の住戸設計を担当。玄関が1階にあるか地下にあるか、どの方角に開いているか、など、その条件からプランニングの考え方も変わります。快適な住環境、機能に加えて、それぞれの家族構成や暮らし方にあったカスタマイズによって、3軒まったく違う住まいが完成しました。
| 所在地 | 渋谷区代々木 |
| 用途 | 共同住宅+長屋 |
| 建築面積 | 363.22㎡ (109.87坪) |
| 延床面積 | 1089.68㎡ (329.62坪) |
| 担当住戸 | 3住戸 (68.5㎡~77.5㎡) |
| 全体設計 | 株式会社 コプラス |
| 施工 | 株式会社 興建社 |
| 撮影 | Shinichi Watanabe / Unico design |


















1-1C
1-2C
1-3C
1-4C
1-5C
1-6C
2-1C
2-2C
2-3C
2-4C
2-5C
2-6C
3-1C
3-2C
3-3C
3-4C
3-5C
3-6C





