ろじにわの家/十色ハウス

四谷四丁目のこの界隈は、道路幅が4mに満たない細い路地が多く、住宅がひしめきあっています。都会の住宅密集地でも、自然の光や風を取り入れて暮らすこと、また、新築の建物によって周辺の環境に悪影響がないことを考え、細い路地に広がりが生まれるような、ふっと視界が開けるスペースを『ろじにわ』として設けました。中に暮らす10軒の住人をつなぐだけでなく、四季を感じる樹々が街の借景となり、ときにアートイベントやワークショップなどで街へ広がっていくコモンスペースとして、街ゆく人、街に暮らす人との関係をゆるやかにつなぎます。『ろじにわ』の樹々は、赤や黄色に色づくもの、花が咲くもの、香りのするものなどを植え、通路の踏み石以外、できるだけ地被植物とし、四季を通じて五感で楽しめる庭としました。
| 所在地 | 東京都新宿区四谷 |
| 用途 | 共同住宅+長屋 |
| 敷地面積 | 243.84㎡ (76.78坪) |
| 建築面積 | 133.10㎡ (40.26坪) |
| 延床面積 | 349.88㎡ (105.83坪) |
| 構造 | 木造在来工法 |
| 階数 | 地上3階 |
| 構造設計 | 長坂設計工舎 |
| 設備設計 | ジーエヌ設備計画 |
| 施工 | リンク・パワー株式会社 |
| 植栽計画 | 株式会社マインドスケープ |
| 植栽施工 | 東和ランドテック株式会社 |
| 造作キッチン | 北沢産業株式会社 |
| 撮影 | 624PHOTO 村田雄彦 / Unico design |























オーナー住戸
オーナー住戸 リビングダイニング
オーナー住戸
オーナー住戸 リビングダイニング
オーナー住戸
オーナー住戸 キッチンとつながる家族ライブラリー
オーナー住戸
オーナー住戸 土間玄関
玄関土間からファミリークロゼットを経て洗面へ続くユーティリティ動線。
オーナー住戸 主寝室
1階賃貸
1階賃貸住戸 全ての室が南側の庭に面する
奥のスペースは、カーテンやブラインドで仕切ると個室になる。
庭につながる土間が半屋外的空間に。
ワイヤーシェルフ『エレクタ』とステンレスカウンターを組み合わせた造作キッチン。
南棟1階賃貸住戸。奥のスペースが個室空間に。
2階賃貸住戸
2階賃貸住戸 各住戸が南向きのテラスに面する


ベネチア『カンポ』からのヒント
建物に囲まれた細い路地、視界が開けるとあらわれる『カンポ』は、もとは果樹園や畑だった場所。都市の繁栄とともに建物に囲まれ、広場としてコミュニティの場となった。高密な都市で、住宅の日当りと眺望に貢献し、水を溜める井戸、祭りや見せ物の舞台など。人々の普段の暮らしに密接した憩いの場である。

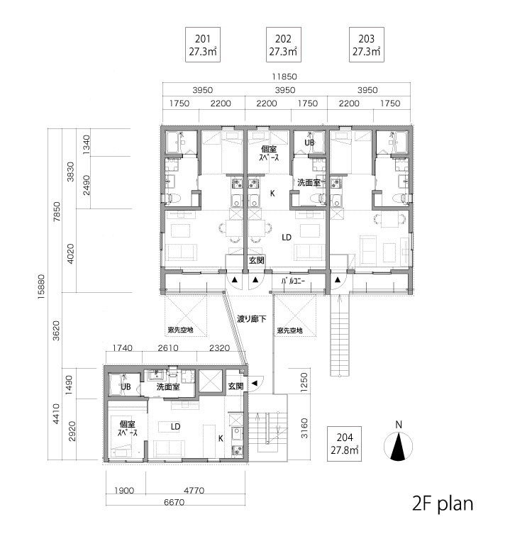
プランの工夫(1・2階賃貸)
分棟配置により、前面道路に開き太陽さんさんと降り注ぐ南棟、四季を感じられる『ろじにわ』に面した北棟と、それぞれ個性をもった全住戸南向きのプランです。1階は、それぞれ『ろじにわ』からアプローチする長屋としています。アプローチとプライバシーの関係、住環境、法規などの面から、2階の一室は、専用階段を設けた長屋としています。

中間領域となる土間

専用階段の2階長屋住戸

バルコニーが外部とのバッファーに

バルコニー側からのアプローチ

前庭のような台形渡り廊下
土間から。南北に抜ける
プランの工夫(3階オーナー住戸 )
北側に少しだけ接道している道路の斜線制限で高さが十分にとれないというデメリットがあるものの、条件としては一番良い3階南棟にオーナー住戸を設けました。将来的なバリアフリー対策として、オーナー専用の住宅用EVを離れた北棟に設けています。『ろじにわ』に面したリビングダイニングを中心に、個室やキッチン、水回りが取り囲むプランです。

プライベートな前庭空間

北側道路の斜線制限

屋根形状を一部アクセントとした畳コーナー

WIC
外部空間の工夫と『ろじにわ』の樹々
『ろじにわ』が、街の借景となり街に開くよう、視線がぬけるゆるやかな境界デザインで、細い路地からの連続感を高めると同時に、防犯面にも配慮し、防犯カメラなどでセキュリティ対策を行っています。『ろじにわ』の樹々は、葉が色づくもの(ジューンベリー、カツラ、マルバノキ)、花が咲くもの(ヤマボウシ、シロバナトキワマンサク)香りのするもの(ティーツリー、ギンモクセイ)、食べられるもの(ジューンベリー、タイム)音がするもの(風にそよぐソヨゴ)など、四季を通じて五感で楽しめるものを植えています。建替前から引き継がれた水かめと灯籠は、土地の記憶として『ろじにわ』にアレンジしました。

鉢植えによる目隠し

踏み石と地被植物

開くこととセキュリティ

ゆるやかな境界

めだかの水ガメ











