柏マンションリノベーション

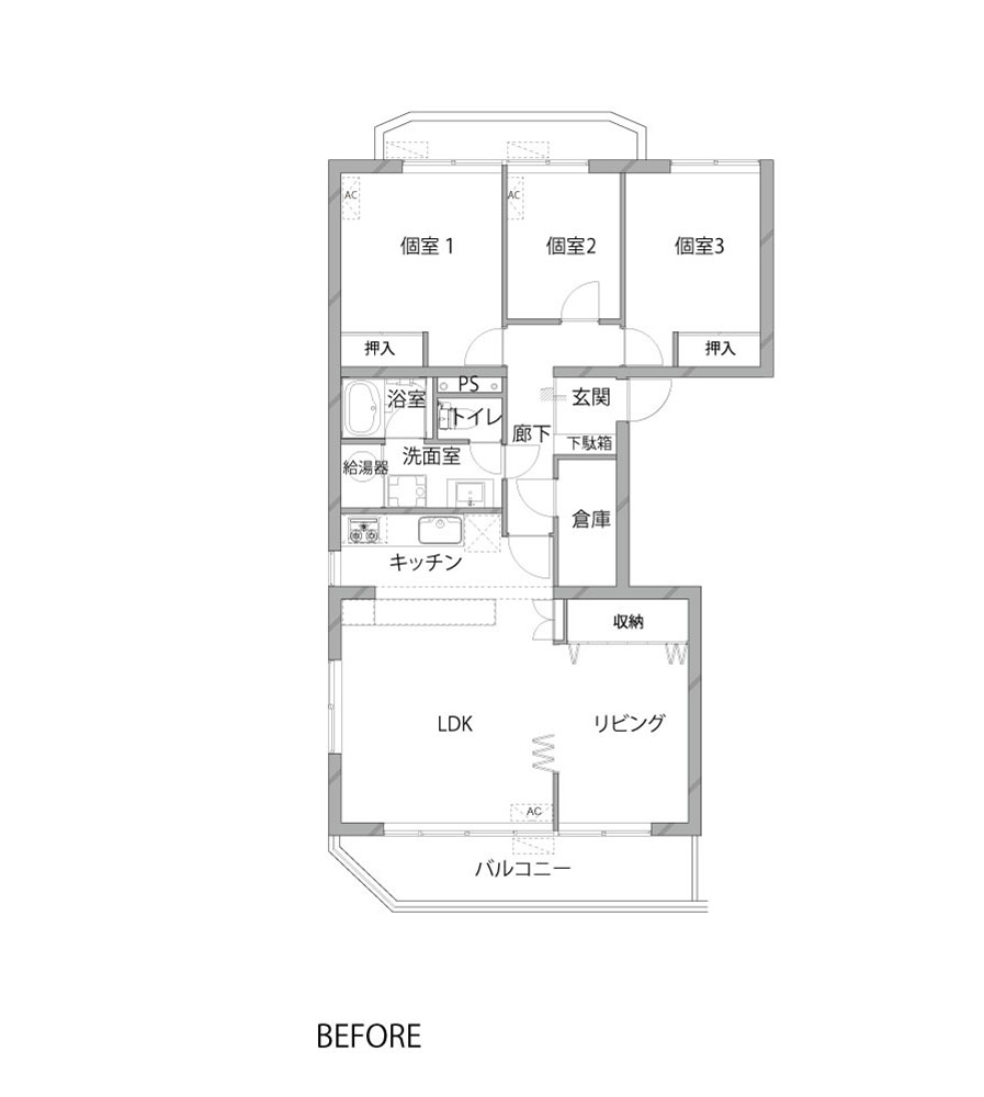
築40年のマンションのリノベーション。洗面室に鎮座する電気温水器の位置を移動して洗面室を充実させること、リビングに床暖房をいれたいというご要望を受け、エコキュートを導入することなど、水回りと設備の更新が肝となりました。間仕切を取り払って広いLDKとすると同時に、床暖房導入のために、二重床で床あげをしたことで、遮音縛りのないフローリング選択の可能性が広がりました。個室3室については、押入れ撤去と模様替え、ドア交換のみとし、一部アクセントクロスを導入して色付けをしています。玄関土間から、シューズインクロゼット、ユーティリティをつなげて、リビングにつながる 動線を新たに構築し、回遊性のあるプランとしています。
| 所在地 | 千葉県柏市 |
| 用途 | 専用住宅 |
| 延床面積 | 89.88m² (27.18坪) |
| 構造 | 鉄筋コンクリート造 | 施工 | リンク・パワー株式会社 |
| 撮影 | Unico design |









KASHIWA03
KASHIWA05
KASHIWA06
KASHIWA PHOTO10''
KASHIWA PHOTO10'
KASHIWA-BEFORE
BEFORE
間仕切り撤去し広いLDKに。
間仕切り、キッチン家具を撤去し、広々としたLDKに。
KASHIWA PHOTO14
ウォークスルーの玄関収納に。
玄関土間からウォークスルーの下足収納を経てLDKへと、回遊できる形に。
BEFORE
AFTER
KASHIWA-PHOTO13
BEFORE
AFTER
給湯器を移動し洗面室を広々と。
電気給湯器を玄関収納内に移動し、カウンターを広げ、リネン収納を設置。
KASHIWA PHOTO12
床をあげて床暖房敷設。
リビングの床をあげて床暖房を敷設。
エコキュートにより、既存の電気容量で床暖房の敷設が可能となり、省エネ化を実現。




